
Visio
Dior Men's Soho
Project Type: Retail - Interior Architecture
Location: Greene Street, Soho, NY
Project Role: Project Manager
Status: Completed
Features: WWD, Vogue, Hypebeast
In the heart of Soho, next to Dior Women’s iconic flagship store, the modern meets elegant. When new fashion designer Kim Jones had to goal of revitalizing the brand making Dior the #1 fashion men’s store in the world, the men’s store design followed. Mr. Jones pulled references from women’s wear to create the men’s collection, and thus illustrating this relationship through the store design was crucial. By shifting the focus from product to experience and by adding built-in sensory advantages with the use of reflective materials, and art, and an emphasis on the footwear, the boutique became an innovative experience in the luxury market.




Dior Mens Finds a Home in Soho- and the Store Opening Was Quite the Rager
Dior Men Opens SoHo Boutique
Dior's New Soho, NYC Men's Store: An Inside Look


Featured Articles
Dior Men's Flagship
Soho, New York
DESIGN DEVELOPMENT
GALLERY

In the 21st century, women's fashion has become extremely relevant for mens design. Thus creating a symbiotic relationship with the two stores was crucial.
Through various techniques such as customer mapping, and analysis of internal data, unspoken consumer desires were uncovered and insights were synthesized into “opportunity briefs”.
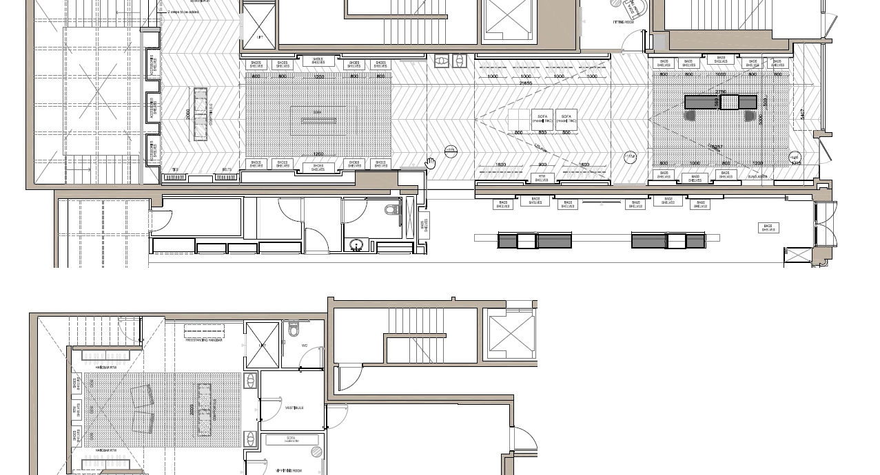
Floor Plan
Greene Street, Soho

Details


By shifting the focus from product to experience and by adding built-in sensory advantages with the use of reflective materials, and art, and an emphasis on the footwear, the boutique became an innovative experience for the VIP luxury market.

Bronze Metal Details










